Objektbeschreibung
——–
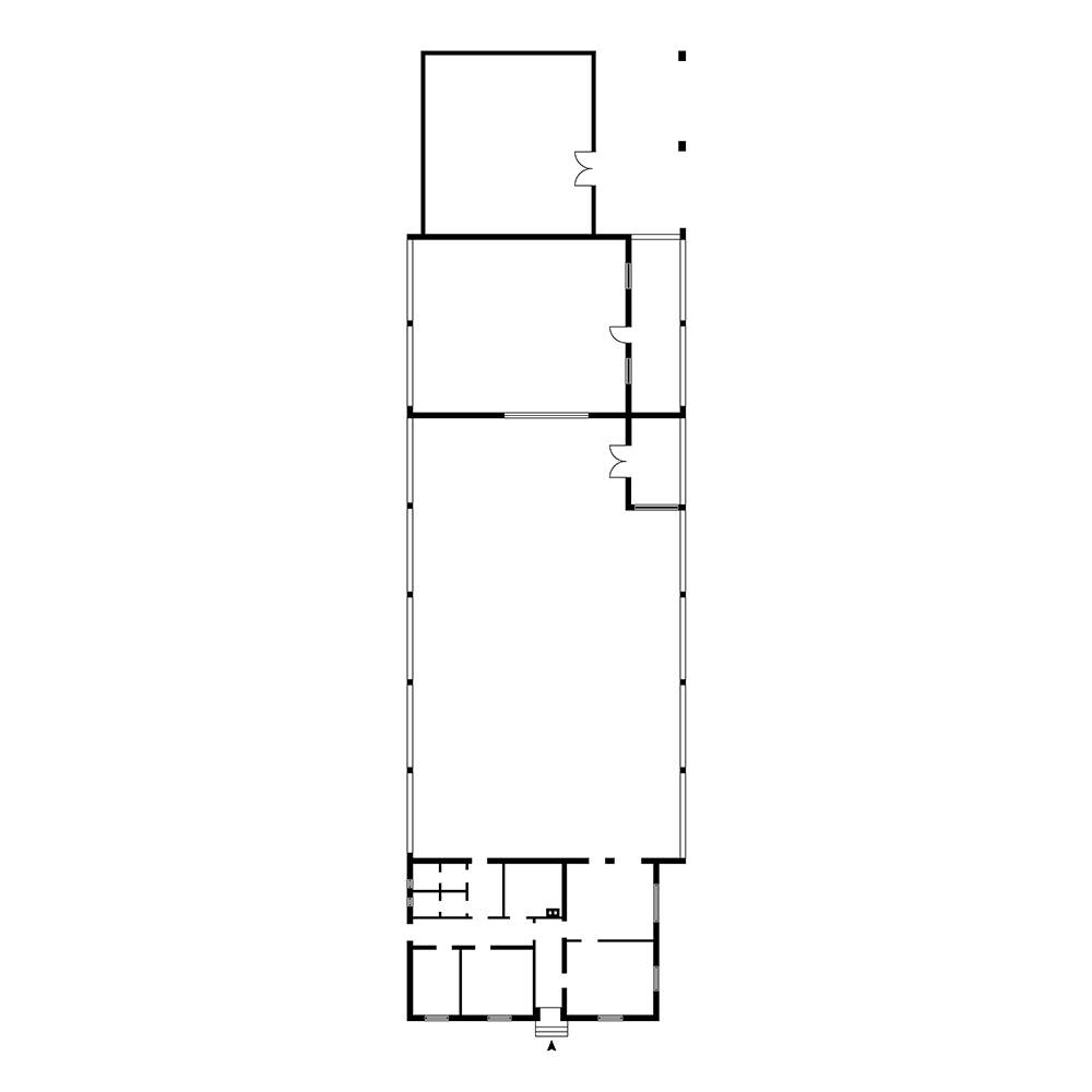
Das 1991 erbaute Gebäude diente seiner Zeit erfolgreich der Metallverarbeitung. Das Bürogebäude verfügt über eine Grundfläche von ca. 107 m² und ist in zwei Büroräume, einen Aufenthaltsraum, eine Waschküche, einen Technikraum und zwei WC`s unterteilt. Vom Bürogebäude aus gelangt man ohne Umwege in die Produktionshalle. Die kurzen Strecken ermöglichen einen schnellen Informationsaustausch zwischen Büro und Produktion.
Die geräumige Haupthalle bildet mit ca. 523 m² das Herzstück des Objektes. In dieser Halle befinden sich zwei mit Glas abgetrennte Räume, die parallel zur Produktion genutzt werden können. Der Zugang ist durch ein
separates Tor möglich.
An die Produktionshalle schließt die Lagerhalle mit einer Fläche von ca. 144 m² an. Die Anlieferung von Waren und sonstigen Beständen ist problemlos über ein ausladendes Tor möglich. Ein weiteres Tor sichert den direkten Zugang zur Produktionsstätte.
Der Außenbereich verfügt, neben einer Vielzahl von Stellplätzen, ebenfalls über eine Doppelgarage. Auf 55 m², mit hohen Decken, finden Fahrzeuge optimal Platz. Ausreichend Raum für Zufahrtswege in die Halle und die Produktion, lassen keine Wünsche mehr offen. Die Photovoltaik Anlage rundet das Angebot abschließend ab ( 50.000,-€).


Lagebeschreibung
——–
Der Ort Bierstetten ist ein Ortsteil von Bad Saulgau. Mitten in der Natur ist hier genügend Platz für jedermann.
Die Gemeinde ist umgeben von Städten wie Aulendorf, Bad Schussenried, Bad Saulgau, Bad Buchau und Altshausen. Dadurch ist in wenigen Fahrminuten eine gute Infrastruktur mit Schulen, Kindergärten, Einkaufsmöglichkeiten und vielen mehr geboten.
Ein weiterer Pluspunkt ist die zentrale Lage zwischen den drei Kreisstädten Ravensburg, Biberach an der Riß und Sigmaringen.
Energieausweis
——–
Heizungsart / Baujahr: Zentralheizung Gas / 2015
Energieverbrauch: 48,7 kWh/(m²-a)
Eff. Kl.: A

Provision: 3,57 % inkl. MwSt. aus dem Kaufpreis, zahlbar bei Abschluss des notariellen Kaufvertrags.













